项目介绍 Project Introduction
	
布置之法,势如勾股
	
紫樾锦西府位于成都市温江区凤翔大道与东坡路交汇处,紧邻三大主干道,17 号地铁线即将通车,交通便捷、周边配套资源齐全。
	
⊙区位分析
	
紫樾锦西府秉承建筑的地域性、文化性、时代性的设计理念,在玻璃幕墙上绘制半透明的国风山水画形象,借用现代手法,演绎古典美学。
	
⊙步入水墨山水之间
	
在功能分区上,最大化地利用场地及大区规划的优劣势条件,合理地进行布置。在南面沿街重要的展示面上,展示最美的示范区。
	
⊙体块生成推导
	
犹如停泊在温江的乌篷船,轻盈跳跃,行云流水,动感韵律,双层夹绢超白玻,立体水墨长画卷,气势恢宏。
	
	
	
漫笔丹青,虚实相生
	
设计师提取中国传统文化元素,以一种更简练而高级的手法来展示建筑之美,在设计中找到平衡性与戏剧性,从而赋予建筑独特的水墨艺术。
	
⊙传统水墨山水中汲取灵感
	
示范区整体外立面采用大范围香槟银铝板,营造高贵典雅的建筑气质。首层主要采用玻璃幕墙,彰显建筑通透性,纯粹性,一层6.1m二层4.2m的层高,展现了建筑的古典比例美学,古典比例加现代玻璃幕的建筑表现手法,将建筑美学体现的淋漓尽致。
	
	
通过不同局部、不同细节的实验与验证,创造充满品质感的示范区氛围,强调场地的流线感、现代感和静谧感。
	
⊙高还原度的国风建筑
	
以开放、邀请、包容性的姿态界定了城市与社区的边界,也为社区生活与城市空间的融入、交互提供了更多触发点。并利用L”型的平面布置,将室内空间和场地分为私密和公共2个部分。
	
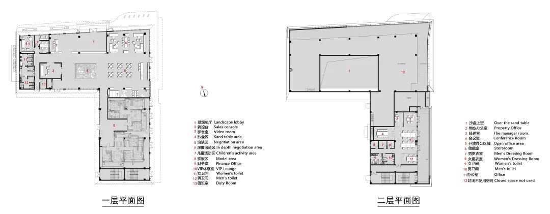
<< 一层及二层平面图 >>
	
并利用立柱将二层悬挑空间支撑起来,带来具有漂浮感的视觉冲击力,呈现出独特的社区建筑形态。
	
⊙剖面图
	
	
	
群山起伏,光影交汇
	
建筑一层采用竖明横隐玻璃幕墙,入口门头使用斜切手法形成一种“透视门”既视感,采用凹型香槟金型材压边收口,结合LED灯带使门头更有层次感,入口左侧使用“梭形”立柱与入口门头相呼应,富有层次与韵律,彰显建筑高贵文雅气质。
	
	
建筑二层采用超白玻夹绢玻璃,加印山水画,背衬银灰色铝板,一幅优美山水画映入眼帘,中间一排折型铝板加凹型竖向杆件与“梭形”柱相互映衬,使建筑更加立挺,右侧采用具有山水纹理的大理石,银灰色凹槽竖梃分割,与左侧山水画首尾呼应,大气同时又不失精致。
	
	
用层叠的侧向白色铝板衬出层次,斜向灯光编织出纹理,并利用光形成优美的渐变。玻璃幕墙的直白透亮和铝板的细腻朦胧,为建筑笼罩了一层圣洁的光晕。
	
	
建筑设计以“水墨山水的当代演绎”为主旨,玻璃幕墙构成朦胧的宣纸画布,演绎山水长卷;在不同时段的光影变幻下营造出朦胧、静谧,或恢宏、磅礴的建筑氛围,力求打造具有丰富文化底蕴的展示艺廊。
	
⊙正立面图
⊙侧立面图
	
双层幕墙外侧为全玻幕墙夹绢玻璃,内侧为3毫米灰白色背衬铝板及玻璃肋的组合,在外立面清晰演绎水墨山水。
⊙节点详图
	
	
	
古典形制,现代美学
	
项目大区是以现代美学为主题的高端社区,规划采用双十字轴对称布局,尽享尊贵奢华。沿景观与道路布置将建筑朝向景观,营造自成一体的绝佳居住感受。点板结合、错落有致,大小庭院形成强烈的序列感、仪式感。
	
	
住宅采用现代主义美学+简洁公建化立面的组合,组团空间多变,户型还拥有当地独一无二的弧形270°转角凸窗。极具韵律感的横向线条与中式建筑符号的运用,精工细作,体现创新性、精致感和价值感。
	
	
结语
山水文化在整个项目的构思中得以诠释,“画中之白即画中之画,亦即画外之画也”,中国传统水墨画的一黑一白,是色彩的基调,亦为“藏境”。城市带来的喧嚣已然逝去,留下的只有山、水、建筑与人所产生的共鸣与遐想。
	
	
	
项目名称 | 成都隆基泰和·紫樾锦西府
地理位置 | 成都市温江区
建筑面积 | 2500㎡
建设单位 | 四川隆和紫樾房地产开发有限公司
建筑设计 | 上海成执建筑设计有限公司
设计总监 | 徐小康
示范区设计团队 | 金磊 李侨 聂立伟 张震
大区设计团队 | 朱永林 陈兴茂 何群 杨斐斐 王正慧
景观设计 | 上海水石景观环境设计有限公司
照明设计 | 成都怡景光环境科技有限公司
设计时间 | 2020.08
竣工时间 | 2020.11
图文编排 | 成执品牌
项目摄影 | 三棱镜建筑景观摄影
	































