侘寂美学 | 星与水,光与影——温州万科碧桂园阳光城·理想之城售楼处

微微风簇浪,散作满星河
项目简介
项目位于浙江温州市龙湾区瓯海大道与龙江路交接口,向西可承接温州市中心区,交通便利。西起大罗山,东到海岸,北靠瓯江,地理条件优越。

玉树三更露,银河万里风
建筑解析-场所营造
原有建筑形象年代感较强,示范区路径欧式风格强烈,体验性较差。植被对项目界面展示有一定影响,
缺乏城市气质感受。道路销售动线中轴对称,缺乏空间张力。

原有建筑、植被、道路

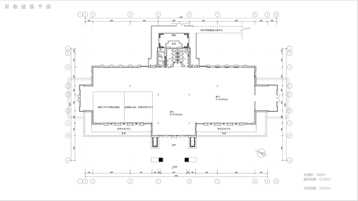
平面图
设计师在建筑的营造上思考过多种方案,如“弦乐秘境”方案,充满自然的光影效果,将城市旧貌转化为充满诗意的展示窗口。
拆除原有雨棚板、减小原有屋檐的出挑,为主入口加盖约16m*13m的玻璃框架,留出入口区域主立面外增加一层构造表皮做法。

过往方案
建筑解析-情感营造
通过多次方案的推敲,老建筑上的场所营造重新通过景观引导进入路径,以宏观的角度看待建筑、景观与人的根本关系,
用简单的手法演绎具有多样性的有趣空间,动态的生命将让沉寂的建筑体灵动起来。

景观路径生成

建筑形体生成

总平图
玻璃幕墙的主题方案也因其肌理的多样化而变化无穷,如“山水丛林”、“水雾江南”、“星河云海“等。而“星空之夏”作为最终的主题,从形态到意向通过对简洁的建筑形象对原有的建筑有一定的遮蔽并营造“星空”虚幻的幻境,对于星空概念的引用,打造一个全新的情感寄托,通过立面肌理的变化对于星空概念的导入与排列。




建筑解析-匠心营造
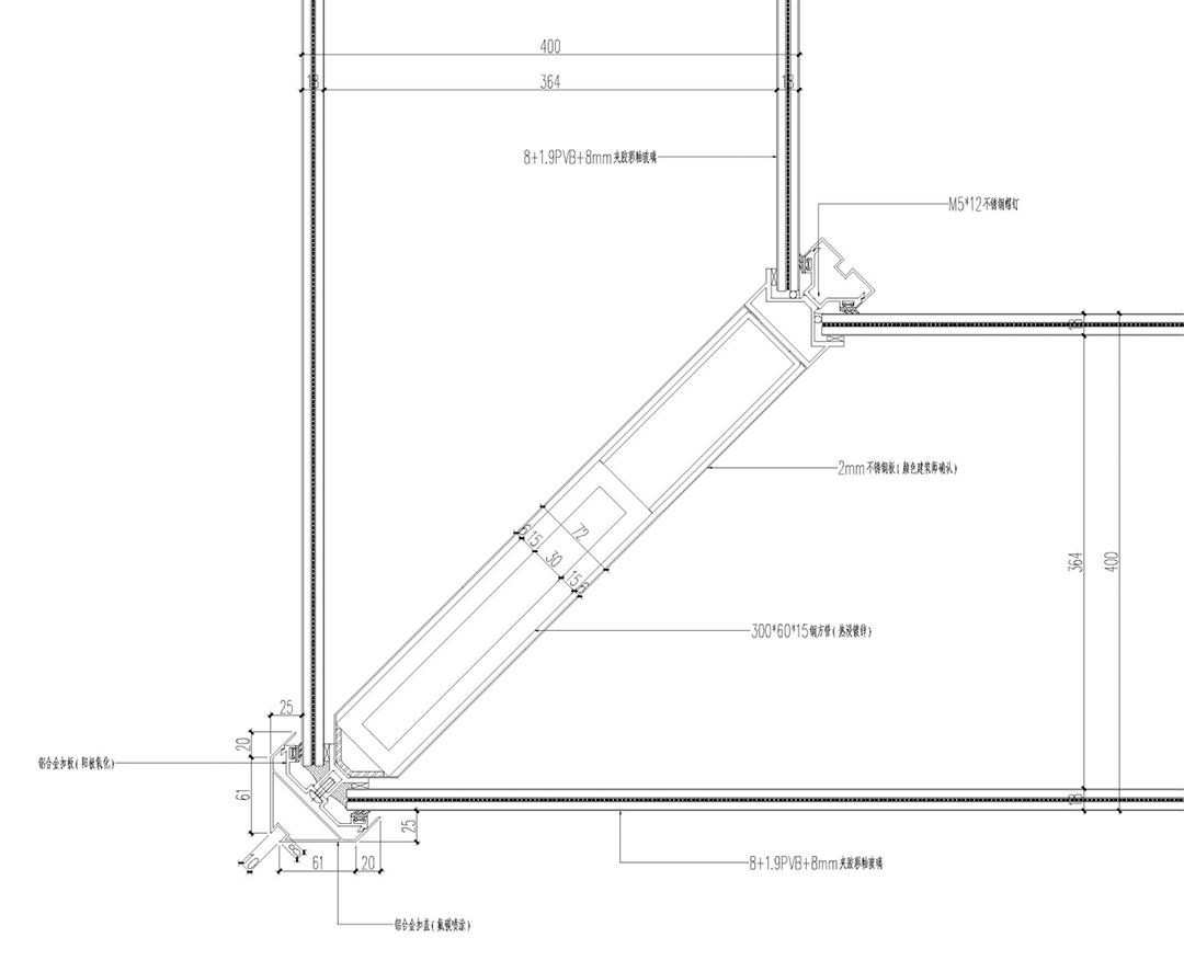
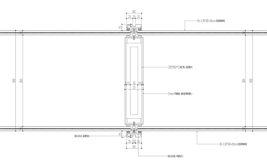
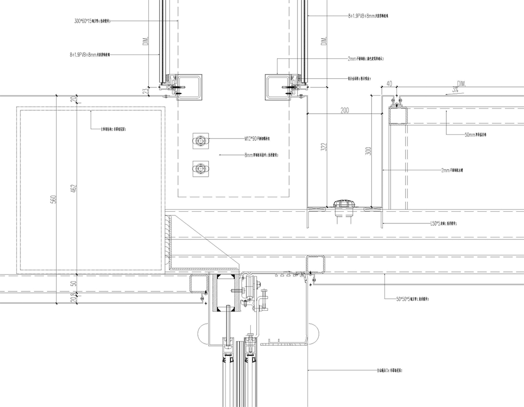
对于空间和时间的截取,希望营造出完整的视觉体验,因此对于每一个节点的把控也到位精准。立面玻璃幕墙总长达80米,幕墙高度为10.2米,每块玻璃均是5.1米。如此大面积的玻璃幕墙已然考验施工工艺。彩釉玻璃的多次打样,及钢柱位置和重新打造桩基的退让,以达到与原建筑的遮掩重合视觉效果。
在极短时间里和做工上的难度,对于极小尺寸的把控,横隐竖显的幕墙体系,营造景观层次和空间厚度的效果。利用玻璃材料的反射和透射,结合数码彩釉技术,共同打造一个边界模糊、层次流转的含蓄形态。




在通透玻璃的立面处理设置水池的处理,水元素的引用为建筑的构成增添了自然的乐趣,继而把室内与室外的鲜活结合了起来。



一个极简的立方体,只是通过玻璃幕墙的处理,塑造一个“星空”,巧借人工,抽象自然。这个项目的设计源于景、表以形、达于意,由景入境,通过一个纯净的玻璃盒子唤起人们内心的自然意趣、山水情怀。“云水立方”,巧借人工,抽象自然。





玻璃幕墙构造做法
从一条蜿蜒曲折静谧悠然的石铺小道经过,清晨阳光明媚。傍晚时候,上灯后,一点点黄晕的光,烘托出一片安静而和平的夜,加强仪式感。



景观入口
走过僻静石路小道,一片水域围绕,弥漫着云水潇散淡远的氛围。门头一面如水帘般的艺术装置映入眼帘,新颖而独特。



会所水帘
镂空效果的艺术装置安置水中,在水面上灵动自如,静透着现代设计的神韵风神,简净且自适。

极简的室内设计是最贴近现代生活的艺术形式,融合了理性的现代建筑与前沿艺术。



会所室内