项目介绍 Project Introduction
	
湖水倒窥疏影动,屋檐斜入一枝低。
——【宋】林逋
	
	
归心 · 传承
Homing ▪ Inherit
	
长沙建发▪玖洲和玺,在现代的建筑构成空间中蕴涵含蓄的东方美学脉络,为当代空间注入诗意表达,彰显古典雅致的国风神韵。
	
本案位于长沙市雨花区中心板块,设计在解决功能问题的前提下,更多考虑的是其独特性的塑造和层次的提升,以传承中国传统文化,融独特性、多样性、生态环保等于一体,为贯穿整个设计的理念。
	
⊙基地选址
	
	
游赏
步移景异
	
示范区设置在基地西侧,结合人行主出入口设置,将会客区、前场接待等建筑作为园林中的小品,用游廊串联起建筑和各种园林元素,构成完整而有趣的游园路径。
	
设计诠释了中式建筑之美,采用“三进院”的传统门庭布局,数进门楼,内庭外院,每一进院营造不同的氛围与意境。
	
	
⊙总平面图|人行流线
	
走过接待前厅,穿行在走廊上,面前便是一片较为开阔的中心水域,远处的建筑与风景能够观望到,却不可直接到达彼岸。
	
视线通透,动线隔绝,前后俱是水域环绕。蜿蜒曲折的路径颇具江南园林般空间体验感手法,旨在让人们从城市的嘈杂与喧嚣中脱离,内心渐渐趋于平静。
	
⊙中心水域
	
从弧形走廊绕过水域,便来到了会客区。传统复古的坡屋顶与高白透视的玻璃幕墙展现了厚重与轻盈的结合,在婉约与张扬、传承与复古间演绎国风之美。
	
⊙会客区
	
身在其中,参观示范区演化成了游园之行,步移景异,空间变幻,随着时间流逝,风景如画动态展现。
	
	
巧思
意境营造
	
整个示范区采用中轴对称的布局,层层递进,组成具有纵深感的空间,方形场地轮廓与圆形水域结合,将“天圆地方”的图式应用于建筑布局,有一种形式美和意境美。
	
	
各处建筑和室内设计同样追求对称之美,空间质朴雅致,强调视觉的庄重感。
	
	
设计通过汲取东方古典美学底蕴,精研传统园林造景精髓,寻求当代建筑之风的突破。
	
要在有限的空间中获得无限的意境,便要巧用造景手法,引水筑亭,叠石栽树,塑造地形为基础,构园之骨架,再辅以框景、对景、隔景等等,将建筑、园路、植物组合成富于变化的景致,以达到“虽由人作,宛自天开”的效果。
	
⊙框景(效果图)门窗取景,如嵌画框,沟通内外空间
⊙对景:两两相对,相辅相成,增加了空间的深远感
⊙隔景:以廊相隔,视线可通,使园景虚实变幻,引人入胜
	
	
石阶幽径,湖光掠影,以山石水林的意境园林,演绎东方居住的禅意哲学。
	
	
	
匠心
结构之美
	
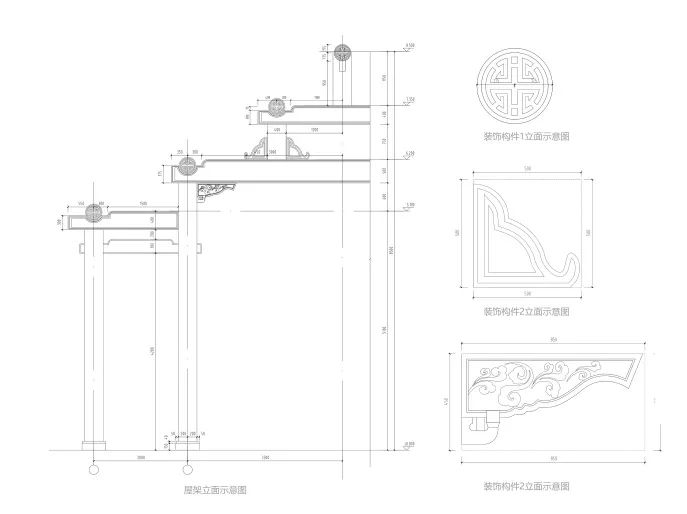
抬梁式结构是我国古代建筑木构架的主要形式,其基本结构是在屋基上立柱,柱上支梁,梁上放短柱,如是层叠而上,室内无柱或少柱,空间宽敞,架构宏阔,典雅大气。
⊙抬梁式结构示意图(图片来源于网络)
	
设计采用抬梁式构架形式,柱头及腰线处点缀华纹符号,将传统建筑形式进行现代转译,精雕细琢、匠心独具,隐喻了中国传统文化的同时表明了其现代化的特征。
	
⊙会客区
⊙屋架立面示意图
⊙滑动查看会客厅立面图
	
品茶会友,抚琴对弈,这里既是一处惬意的业主邻里交流场所,同时与住区内中心花园形成了和谐的共生关系。
	
⊙会客区平面
	
	
藏趣
元素解析
	
	
(唐代建筑)色调简洁明快,屋顶舒展平远,门窗朴实无华,给人庄重,大方的印象,这是在宋、元、明、清建筑上不易找到的特色。
	
——梁思成
	
建发 ▪ 玖洲和玺设计以传承几千年的文化积淀为骨,以“唐风▪儒门▪华纹”为术,重构中式礼序美学下的风雅生活。
	
主出入口立面设计采用王府中式建筑风格,从中国传统古建筑中吸取营养,在继承传统美学的同时,寻求当代之风的突破。
	
	
建筑材料上主要以石材和铝合金不锈钢为主,沉稳大气的体系色彩,与大门融为一体的景墙设计,兼顾实用与艺术感,彰显主人家的尊崇威仪。
	
	
深远的出檐,和缓的举折,由此构成的优美屋顶显示着盛唐时的雄健气度。设计在现代工艺科技的加持下,再现了“如鸟斯革,如翚斯飞”的飞檐形态,诠释“名门宽境”大家风范。
	
	
华纹,即为传承中华文脉渊源的图案纹样,在器物、服饰、建筑等多有广泛应用。通常从自然中取材演化,意喻吉祥,寄托着数千年来恒久不变的美好愿景。
	
⊙回纹,源自漩涡形态,寓意“富贵不断头”(图片来源于网络)
⊙云纹,源自云彩形态,象征高升和如意(图片来源于网络)
	
	
	
结语/
	
长沙建发 ▪ 玖洲和玺设计将东方美学与现代建筑语汇相结合,强调“人、建筑与自然”和谐共生的理念,为当代城市人群构筑诗意栖居之所。
	
	
—— 长沙建发 ▪ 玖洲和玺 ——
	
	
工程档案
项目名称 | 长沙建发 ▪ 玖洲和玺
地理位置 | 湖南省长沙市平托路与平阳南路东南角
项目业主 | 建发房地产集团有限公司长沙分公司
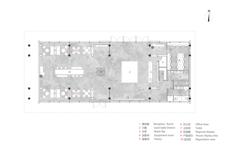
	项目功能  | 示范区
	建筑面积  | 1221 ㎡
	建筑设计  | 成执设计
设计总监 | 刘巍
设计团队 | 廖泉舟、于颂、席澋城
景观设计 | 广州域道景观设计有限公司
室内设计 | 深圳磐石设计有限公司
施工图设计 | 重庆长夏安基建筑设计有限公司
设计时间 | 2021.06 - 2021.08
	竣工时间  |  2021.10
图文编排 | 成执品牌
项目摄影 | 繁玺视觉
	
	




























