项目介绍 Project Introduction
极简主义

造型的简单不代表体验的简单
复杂存在于形式少量的形状中
极简主义是消除创作载体,将建筑从“有”转化为“无”,建筑是形体,是空间,是场所。以精致的工艺挑战虚无的空间形式,体现出材料的生命力,强调观众与建筑之间的联系,其底蕴是以简洁纯净去抵抗混乱无序。







△ 原设计方案
庭院是将建筑、山水、花木等元素通过艺术手法组合而成的建筑综合体。“向心而筑”这种建筑空间形成了独特的文化魅力,用来营造单体与群体空间。内向性空间布局由其功能决定,在整个项目交通最便利,最佳昭示面的位置布置了展示中心,不仅仅达到了形象与功能的平衡,也达到了效率与体验的完美结合。
△ 总图

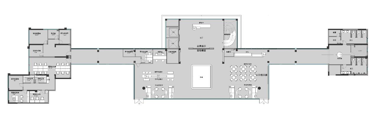
△ 平面图



落纸烟云
参数化设计的栅格外表皮幕墙,表达了云的律动,以静写动,非简单的云的形象。很多设计习惯于把具体的形状映射到立面上,而本案中设计师将形转化为像,将云千姿百态变化的瞬间凝固在这幕墙之上。





△ 参数化幕墙设计




建筑净化
设计师尝试抛弃一切装饰,同时赋予建筑净化后的深刻内涵,展示其最真实的品质,企图以极简的造型、干净的空间、优质的材料、精致的细节打动心弦,更是强调对形式和空间的赞美。
展示中心回归典雅的比例,借着结构调整的契机,将原2米高的钢结构网架形式改成不到1米的胶合木屋顶,修改了形体的比例,降低了建筑高度,回归建筑美学的本质。



展示厅能达到极致开敞的效果,是因为260平米中只有两根立柱,跨度达到25.6米。7米无肋通高玻璃幕墙,极致虚无,室外景观室内化,模糊了空间界线。从空间开合,功能布局,材料运用,景观布置,都为了人的体验感而存在,这就是建筑的意义。

△ 展示空间宽阔视野

△短肋玻璃幕墙





入口难点在于形象展示与视觉焦点的打造。5米高电动铜门,采用和谐的比例关系,宽与高都以人体比例为基准设计。



△ 铜门多方案比选




寸阴尺璧
新技术下的重型木结构以其自由的跨度、自由的高度、自由的造型,让人惊叹。这种内在的复杂力学通过构件进行表达,不仅使设计师考虑建筑的美学价值和意义,也保证了施工的准确度与周期。
若用原本的钢结构网架屋顶所需施工周期为2个月,而胶合木施工团队仅用半个月就完成所有骨架的搭建。且30米面宽的大厅,大跨度,精准加工,变形少于6厘米,对幕墙与内装没有任何破坏。

△ 胶合木骨架



本案中的设计实际上是一种对“表现”的克制,使得观众能直面作品本身,简洁且独特的手法提高了视觉感官的冲击力,但也增加了设计难度,给予设计师极大的挑战。而这种具有较高冲击力的作品,才真正代表了作品背后对艺术深刻的坦诚。