项目介绍 Project Introduction

/

本案位于四川省成都市成华区,昭觉寺南路与中环路昭觉寺横路段交叉口东北侧,街角界面向城市打开。毗邻绿化覆盖高达88.41% 的昭觉寺城市绿肺区,主城内最大城市公园海滨公园。设计师希望建造一座成都的又一奢尚中心,延续商业气息秉持奢侈品店般的轻奢质感,提升整个城市的审美语境,展现一种高规格的生活理念。


△ 总平面图



/

本案分别由五个大小不一的盒子堆叠而成,采用积木式体块穿插的形式,让每个盒子相互咬合增强了形体的透视效果,各部分体块各显独立,却又紧密相连。同时化解了大体量建筑带来的沉重与压抑感,强调建筑体块与内部功能的有效结合。设计师在街角处以退让的方式强调入口,开展与周边形成相适应与平衡的共存关系,同时也充分的利用建筑用地,创建额外的户外公共空间。

△ 体型生成图




△ 剖面图





/

立面材料分两个主要元素,入口处运用米黄色石材和铝合金格栅幕墙的交织,整体色彩协调性较好,实体墙和半透明材料的交替形成表面的韵律。表皮以统一而富有变化的造型带来强烈的视觉冲击,营造出一个洁净的环境同时又是相对较为素雅轻奢的立面。

△ 表皮材质



北立面采用了彩釉玻璃幕墙,将室外的光源通过建筑外墙的玻璃以及天窗反射到室内空间,让整体效果更加充满韵律以及活力。摆脱了保守的束缚,以大量创新的手法作为建筑的装饰立面,这并不像传统概念中的表现手法,似乎以一种特定的立面形式来表达商业角度的宣传。



/





结语
工程档案
项目名称 | 成都梵锦108项目示范区
地理位置 | 成都市成华区昭觉寺南路与川陕路交汇
项目业主 | 金地商置&弘阳地产
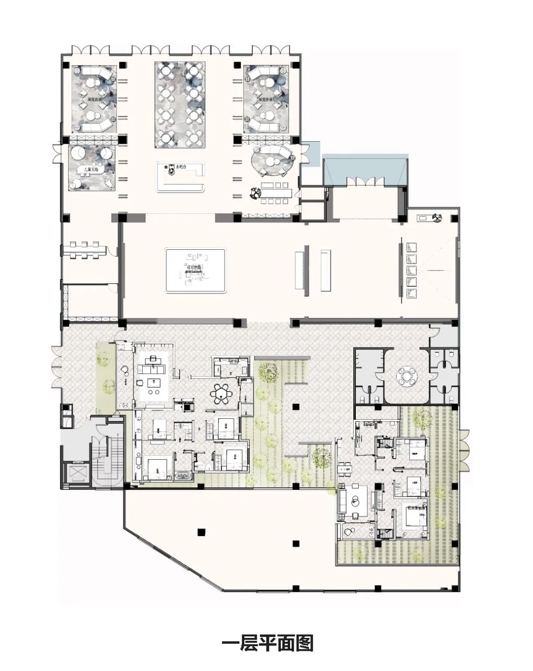
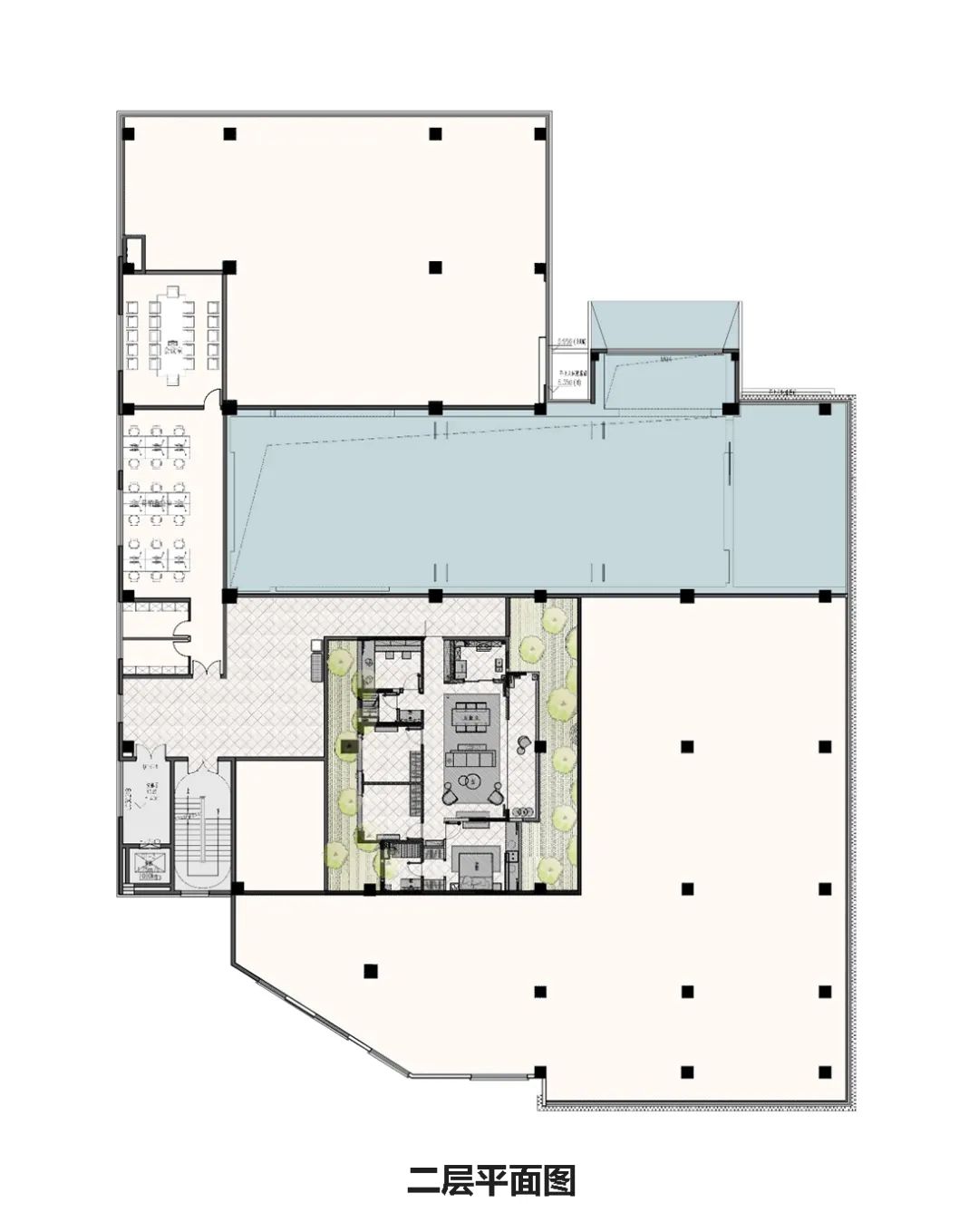
项目功能 | 社区中心
建筑面积 | 6828.9平方米
建筑设计 | 上海成执建筑设计有限公司
设计总监 | 姜超 刘巍
设计团队 | 夏萍萍 谢厚旻 于颂 彭朝飞
建筑施工图设计 | 筑博设计股份有限公司成都分公司
景观设计 | LAURENT罗朗景观
泛光设计 | 上海徽之度照明科技有限公司
设计时间 | 2019年6月
竣工时间 | 2020年4月
项目摄影 | 三棱镜建筑景观摄影