项目介绍 Project Introduction

武侯ICON.
公园溪畔的东方美学之作
区域分析
汉上钩沉,忠贯云霄,武侯区因第一座纪念诸葛亮的武侯祠而得名,锦官首著展示中心便位于四川省成都市武侯区,基地周边交通路网发达,配套资源成熟。本案择址于黄堰河之侧,邻铁佛公园,园湖河林,绿地环绕。多数人是逛公园,但只有少数人是住在公园旁,与白鹭为邻,与自然共生,满足你对主城公园慢调生活的一切想象。设计师带着在地文化脉络的思考,期望筑造具有现代“东方”美学的武侯ICON,如水畔璞玉,莹润生辉。

⊙区域分析图
景观缝合
基地西侧黄堰河环绕,但周边已建成的小区及商业年份较久,颜色较重,需要用建筑点亮街角,同时基地空间较小,需要后退建筑扩大前场基地。设计师希望在此布置具有现代美学的建筑成为武侯ICON,因此本案取巴山蜀水之悠悠水韵、锦官城柏森森之林影之美,营造“水韵林影”的主题,用景观缝合城市缝隙,极具透明感的建筑物富有视觉冲击性,吸引人们的视线。
建筑前场萦萦碧波,水林相映成趣,增添建筑的漂浮感,而后到达城市会客厅共享空间,透过晶莹的弧形造型玻璃,映入眼帘的是花影林迹的唯美空间。
⊙总图流线分析图
璞玉雕琢.
熠熠生辉的城市展厅
设计概念
建筑与城市之间的连结,是不断被思考的世纪命题。本案意图在老街区内打造标志性的城市展厅,集现代感、品质感、精致感于一体。当代人们的品味之变,趋向于更具有前瞻性和潮流性,追求变革与创新。
⊙设计概念(图源网络)
展示中心没有选择传统的封闭边界,而是以简洁通透的建筑形态与水韵林影的景观相搭配,弧形的玻璃面宛如微风拂过的湖光水色,回应场域河韵乡情,挑板则增加了包围感和力量感,虚实相配,建筑内部空间体系面向城市可知、可感。精心雕琢的建筑物如溪流中的璞玉,临河之畔,熠熠生辉。让建筑点亮城市街角,景观缝合城市间隙。
⊙形体生成
建筑以L形体量占据城市街角,尽可能扩大展示面。洽谈区位于景观最优处,室内局部下沉的处理手法,增强了空间限定感,也让洽谈区临水一侧更亲水。
室内空间
进入室内,洽谈区天花低点达6.15m,前厅及过道天花低点5.75m,不同的天花高度带来空间感的变化,划分了空间序列。高大明亮的空间引入阳光激活空间氛围,相对的界定形成了角落的领域感。
⊙空间与光的纳入
光影长廊以“prada绿“的柱式阵列,组织室内视线关系,同时也将自然的氛围带入室内,如竹光掠影,让空间更加热络惬意。外置的次要动线,也让沙盘区空间更加完整,避免人流的穿插以及减少功能对室内墙面效果的影响。
⊙剖面图
景观后院
移步展示中心,访客进入到廊影林趣的现代雅致空间。行云流水的连廊空间,带来步移景异的景致,廊下光影成趣,内庭树影斑驳,体现了出则繁华,入则宁静的大宅气质。
设计师不仅为来访者开启尊贵的归家之旅,也传递了诗意的生活温情,东方美学大宅的生活艺术,最后进入真实生活场景的实体样板间。
晶莹剔透.
弯钢玻璃构成幕墙体系
展示中心采用现代极简美学的风格,弧形的弯钢玻璃形成晶莹剔透的幕墙结合铝板飘顶,形态简洁大方而不失灵动。
玻璃幕墙使建筑具有了透明性和轻盈感,弯钢玻璃的出现满足了现代美学对于作品的更高要求,其光滑的流线型实现了从平面幕墙到弧面玻璃幕墙的完美过渡,使玻璃幕墙运用于建筑更具圆滑平整,自然良好的整体感。
⊙结构拆解分析
本案主要立面由16块5.7m高,1.6m宽的无肋自承重的弯钢玻璃组成,由于造价高和工艺难的特点,是十分罕有的立面材料。既有超白玻高透的特性,又随着弯弧形成视觉上阵列的反射,使得展示中心立面品质提升。
⊙弯钢玻璃尺寸图
⊙材料分析图
无肋的幕墙体系让室内外的连接更完整,也减少了幕墙立挺对于视线的干扰,让建筑立面更显晶莹剔透。

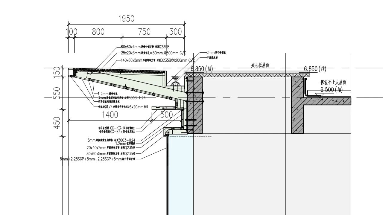
⊙幕墙节点图

⊙幕墙节点图
建筑立面,设计师采用铝板密缝拼接的方式,避免胶缝影响整体品质,精工匠筑的细节是建筑造型简约而不简单的保证。
锦官首著的LOGO来自于对华润企业文化以及项目地域属性的提炼,“芙蓉花”作为成都市花,象征着繁荣富贵,LOGO在芙蓉花瓣的基础上变形,融入建筑极简流线型的立面线条,勾勒都会高级感。代表华润在武侯的首个项目,开启全新篇章,又具有繁华醇熟的美好寓意。
⊙LOGO设计理念

⊙材料选样
⊙弯钢玻璃施工现场
盒子森活.
一进院落景观渗透
“丞相祠堂何处寻,锦官城外柏森森”,历史文化悠久。设计师从在地文脉的角度出发,参考中国传统院落式结构进行规划,但是楼栋之间距离过近会存在视线干扰,因此最终选择了一进院落——大庭院的布局形式,空间尺度开阔,南侧朝铁佛公园打开,从而使城市景观能够渗透。
⊙意境效果图(非交付标准)
锦官首著的规划中,城市景观与社区内部景观相互渗透,楼栋错位布局,视野廊道通透,最大化利用黄堰河和铁佛公园景观资源。
⊙景观视线图
设计始终围绕着在地文化,从蜀绣中提取元素经纬然后结合环境的林樾水脉,设计以“盒子森活”为主题,打造“一轴四重六境”的景观空间层次,多维体验演绎现代品质人居。
⊙人形流线图
本案以社区运营为主导功能空间,对归家系统进行梳理,整合社区后勤服务,针对不同场景和业主体验需求,以智慧赋能提升使用场景体验及物业管理效率,规划社区智慧服务体系。
⊙意境效果图(非交付标准)
⊙意境效果图(非交付标准)
外立面设计上引用了藏山纳水的设计理念,传承东方艺术之美,框构中正,完成了古典美学的现代转译。形态上舍弃了住宅惯用的平直方正,采用弧形立面设计,将山的刚毅,与水的柔和完美演绎,刚柔并济,充满生命活力。
大堂的设计趋向于视线明朗,较少阻挡的方案,社区内部与城市之间隐隐有联系但是又隔断,入则宁静,出则繁华,延伸向城市公共空间。
⊙意境效果图(非交付标准)
143㎡户型采用LDKB一体化设计,约7m宽的横厅,加上宽景阳台和中岛,开放式的格局满足了开敞通透的空间要求,将空间感做到最大化,以期承载多元化的功能。可以打造办公、娱乐、收藏、儿童活动空间等,有助于家庭活动开展,满足成员多元化的需求,尽享居家惬意时光。
⊙回游动线
客餐厨空间设计,布局开放,洄游动线更符合业主对功能化和社交互动的双重需求,避免由隔断产生的空间逼仄感。通过开放式的空间设计,重新编排生活功能,提高家人间的互动性。
⊙功能模块
方厅的设计,没有削减其他功能区的舒适度,卧房集中一侧,动静分区,保证私密性。豪华主卧套房,集起居、衣帽、休闲于一体,连同三件套的卫生间,仿佛酒店化功能,成为真正意义上的私人领地。





结 语
以“公园”起始,又以“花园”结束,整套规划逻辑一直都贯穿在“水韵林影”中,打造了“溪畔的东方美学大宅”。运用现代技术工艺筑造了独特的通透空间,让建筑点亮城市街角,用景观织补城市缝隙。
工程档案
项目名称 | 成都华润置地 ▪ 锦官首著
地理位置 | 四川省成都市武侯区
项目业主 | 华润置地
用地面积 | 14501.86㎡
建筑面积 | 43000.69㎡
建筑设计 | 成执设计
设计总监 | 鲍震宇 徐小康
设计团队 | 朱永林 董林兵 李海洋 肖睿 梁洪艳 李侨
施工图设计 | 基准方中建筑设计有限公司
景观设计 | 柏景(广州)园林景观设计有限公司
室内设计 | ONE-CU壹方设计
设计时间 | 2022.09-2022.11
竣工时间 | 2022.12
项目摄影 | 浅深摄影 (建筑景观)贺川(展示中心室内)
鲁哈哈(样板间)










































