项目介绍 Project Introduction
本案位于安徽省合肥市肥西县明珠广场旁,共享邻近经开区成熟的配套资源,周边商业广场步行即达,城市主干道环绕,景区三湖环伺,生活便捷,产城共存,极具发展潜力,是肥西县无缝融入市区发展的桥头堡。
⊙区位分析
0.618,数学家欧几里得提出的黄金比例,宛如海螺一样的图案揭示了美学构图的奥秘。揽境的设计以现代几何线条之美,演绎自然美学栖居,在方形的建筑物中切入黄金分割的线条,形成主入口的迎宾艺术水幕环。入口前设置半圆水景与之呼应,结合五步台阶拾级而上,提升门头气势。
⊙黄金分割图解(图片来源于网络)
⊙总平面图
基地拥有近81m的超大尺度沿街展示面,设计以三个体量互相叠合的方式形成建筑主体,通过拉长城市界面来增强对区域的控制力。以强化归家大门为出发点,建筑形体简洁,以L型入口门厅体量作为刻画重点。
我们期望在这样一个较长的城市界面塑造视觉亮点,作为项目于城市的亮相。建筑一层入口大门与二层反向L造型形成如同“飞鸟展翅”形成起飞之势,给人留下了深刻的记忆点。
⊙方案手绘
⊙体块生成
方案经过了多轮推敲逐渐细化,入口采用斜厅向外开口的形式,如同“喇叭口”外宽内窄,展示迎客之势,竖向柱廊采用“梭”形状阵列排布,确定基本造型体块后,深化细节做法,在人感触到的部位设计细腻,形成城市客厅的设计概念。
⊙设计推敲
揽境倾向于现代化的艺术表达方式,约38m酒店式星空门头和巨型迎宾水瀑缔造高端奢雅的酒店式氛围,依照黄金分割弧线切入的天空消解了暗色、材质与体量带来的压迫感。
石材与金属无处不在碰撞,不同纹理间组成独特韵律,干净而纯粹的表达透露出精致,融合景观,达到景观建筑一体化,人与自然和谐共生。
入口隔开了城市的喧嚣,开敞式的设计如同画框,步入后亦可回望繁华之色。沿着黄金比例柔和的弧线景观连廊和水上浮桥从自然中生长,圈一域水景,笼一方宁静。
⊙剖面图
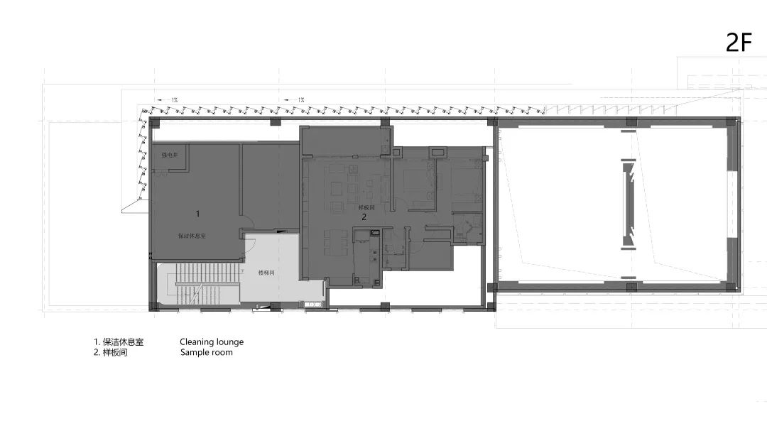
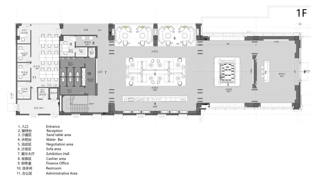
⊙滑动查看平面图
合肥龙湖 ▪ 揽境采用灯光精装景观一体化设计,光源的数量和强度营造了一种不分昼夜的连续性,Light washing的设计使得灯光像水一样洗过墙面,勾勒出建筑的轮廓。当阳光隐去夜色来临,灯光的千变万化铸就了城市美丽的夜景。
主入口星空吊顶结合景观水幕圆环排版,在圆环交接位置增加渐变穿孔铝板设计,背衬亚克力加泛光与星空吊顶呼应。最初选用竖向格栅,但排列板直,过于简单,后采用较为轻盈的穿孔铝板,与吊顶形成呼应,但圆形穿孔方式与吊顶肌理没有呼应关系,改为三角形穿孔纹理形式,与吊顶斜切内凹造型相呼应,由疏到密往圆环渐变过渡。
⊙设计推敲
通向室内空间的入口门用均分格栅的方式略显笨重,增加长条窗户后采用了更为纤细轻盈的格栅,但为了保护室内的隐蔽性,最终去除了玻璃窗,增加鳞片状韵律造型排布于两侧,用格栅进行虚实过渡。
⊙设计推敲
整体由斜厅变为方厅,景墙开始采用错位交接的方式排布石材,内凹藏灯,然而错位排布的方式使墙面显得零碎,调整比例后仍觉效果较差,因此将分隔方式改为竖向排布增加金属线条收边,交接位置处增加洗墙灯。
景墙并不是平整的面,而是偏转5度的竖向片状石材,结合泛光墙面洗亮,使其更具有韵律和气势。每片石材侧边都有金属包边,中间内嵌10*10mm成品灯条,顶部及底部增加格栅收接、转角包边、铝板装饰条等多处细节。
门口左右两侧各三颗装饰柱,基座底下为景观砾石结合泛光地埋灯,打亮石材,装饰柱面宽1.2m,厚0.3m,高5.8m。外包仿铜不锈钢、主料金茂兰石材,结合不锈钢金属收边,提升价值感。与建筑整体形成厚重与轻盈的结合,虚与实的对比。
建筑立面风格时尚而简约,二层折行玻璃+弧形穿孔铝板内藏灯光,泛光透过穿孔铝板形成“星河”效果与吊顶呼应。材质交接自然过渡,形体与交接咬合关系清晰。首层采用高透低反的平面玻璃,以便更好地向外展示,二层则采用高反低透的钢化玻璃折行排布。
⊙节点分析
⊙滑动查看立面图
在快节奏的城市生活中,一处舒适人居离不开全方位配套的加持和承载。合肥龙湖 ▪ 揽境地处繁华之所在,以“一站式”的缤纷生活体验旨在创造新型生活方式,诠释产生归属感的家庭生活。
揽境总体规划属于高品质商住组团。繁华的商圈与便民配套,是升华人居品质的关键。地块内商业配套的建设弥补了周边资源短板,现代的风格,通透的界面,趣味的屋顶花园,揽境的商业亦是一道风景线。
⊙效果图
住区全小高层业态,超大楼间距,为未来生活场景的营造,住区活动氛围的打造预留了充足的空间。项目采用充满仪式感的中轴对称布局。花园位于纵横双轴交汇处,楼栋围绕花园布置,空间层层递进,四平八稳,形成正气十足的宅居空间序列关系。
⊙效果图
揽境以清爽简约的风格独树一帜,爽朗的立面与优雅的天际线相得益彰。楼栋采用现代风格公建化外立面,在风格选择上,摈弃传统,采用不对称竖向设计元素,米黄及米白双色表皮进行打磨,大方典雅,品质呈现。
⊙效果图
合肥龙湖 ▪ 揽境地理位置得天独厚,是整个“两湖科创圈”的发展风暴眼。设计以匠心铸就了时尚简约而又不失精致的建筑,将理性和感性结合的美学发挥到极致,成就了表现克制的奢雅范式。以兼具空间质感和人文美感的建筑,全方面满足当代菁英对品质生活的改善需求。
工程档案
项目名称 | 合肥龙湖 ▪ 揽境
地理位置 | 安徽合肥市肥西县金寨南路与石门路交口南侧
项目业主 | 龙湖集团
项目功能 | 城市客厅
用地面积 | 4866㎡
建筑面积 | 981㎡
建筑设计 | 成执设计
总建筑师 | 李杰
项目总负责 | 吴迪
示范区团队 | 李侨 董林兵
商业设计团队 | 曾俊波 孟庆领 黄梦华 杨帆 陈罕怡
住宅设计团队 | 孟庆领 詹勇琪 姜海 马振杰
BIM团队 | 张永鹏 路璐 易成璇 张毓慧 王洋洋 陈罕怡
施工图设计(住宅)| 成都须弥云图建筑设计有限公司
施工图设计(商业)| 洲宇设计集团股份有限公司
景观设计 | 广州怡境景观设计有限公司
设计时间 | 2022.7-2022.8
竣工时间 | 2022.9
项目摄影 | 繁玺摄影
