项目介绍 Project Introduction

体验是指人们用一种本质上个性化的方式来度过一段时光,并从中获得一系列值得回忆的事件。
——约瑟夫 · 派恩
描绘未来生活缩影
锦绣樾江府生活美学馆位于南京江北自贸区研新路与园特路交汇处,是社区配套商业街的一部分。在设计中将建筑与室外景观相互衬托,在唯美的人工空间中,引入一丝自然的环境美,营造一个有温度、会交流的生活美学馆。

△ 总平面图


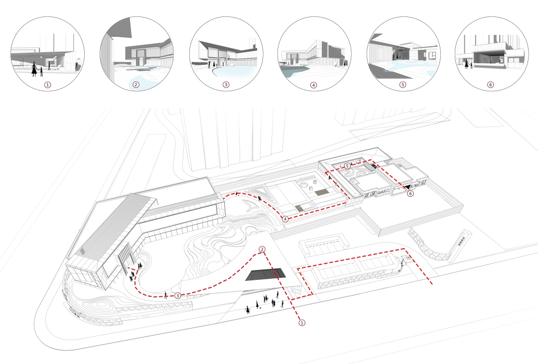
建构自由漫步空间
空间成为引导自身体验当中的一部分,是相互联系的,开放的。游览者既能以理性的方式穿过各种捷径达目的地,也可感性的四处游逛,使空间更加积极的参与到其中,成为信息化和艺术化的体现。从而将展示空间扩展到外部广阔的地理空间,突破了传统封闭式的、固定式的空间局限,呈现出开放性、日常性的特点。

△ 流线图


入口空间
开启进入美学馆的隐形门
遵循一定的设计逻辑和美学设计,通过“以点带面”的手法,不同的空间划分,形成“小中见大”的视觉感受,将空间序列以递进关系与路径功能有效结合起来。

△ 空间分析图
采用内弧形超尺度入口偏置,增加顶部细节添置趣味空间,进一步增强导视性及昭示性,保证视线集中,结合灰空间打造更具仪式感与品质感的入口。


建筑形态
建筑与景观为一体 构筑虚实立体效果
简洁平整的体块组合舒展有序,形成虚实对比强烈的立体效果。通过建筑整体的形态、肌理、光与彩、细部构造等,打造整体化全息空间体验。几何造型的排列组合与玻璃幕墙的结合,将建筑与景观泛光效果为一体,通过简洁清晰的外形,向人传递明确且直观的信息,在夜晚显得格外通透干净。

△ 立面图



建筑表皮面板用12mm厚超白钢化玻璃,夹胶玻璃肋支撑;2mm不锈钢拉丝仿铜;260宽8mm厚双层U型玻璃正反扣,上下槽式连接,将葡萄牙米黄石材镶嵌其中。这些材料进行组合与构造,以材料及构造手法保证平整度,建筑表皮细节上的使用确保了肌理的辨识度。

融入传统围合造园手法来营造现代手法的表现,一步一看、一框一景、打造游走山林般的体验空间。从视觉、听觉、多层次,多维度打造流水,绿岛,植物。

△ 前水景空间流线图


随后出现在眼前的是一条幽静林荫漫步道,两侧的跌水景观。以高地势流水为主体渲染气氛,起伏地势掩映建筑,动中有静。


活动空间
趣味探索 童心乐谷
看景为开敞草坪空间,植物四季鲜明,风光不与四时同,微缩大区体验,雅致林泉。打造曲折道路,活动场为独立空间,增加可选择性,可引导游览者快速进入样板体验场所。


将动态的实物以静态的载体由美学的设计要素运用到乐园之中,让儿童直接徜徉在梦幻童话中,感受主题性童梦童享的魅力与生命力。开敞空间在游戏区域的围合边上均设置出口,强调空间的共享,使游戏区域与周围环境相互融合,相互渗透。

合院空间
沉浸青树翠蔓 踱步木踏青苔
通过连廊围合出中庭空间,以动线首先穿过连廊,进入生活展示馆,再穿过一段廊架进入HUB空间,半围合式的布局在保持整体一体化的同时,也围合出多层次的隐密之所。换鞋&等待,可进入两边的样板间。

△ 合院空间分区图





HUB空间
符合人体功能和形式美的原则
在HUB空内可以近距离接触自然景观,时刻体验室外的环境。排列有序的木色格构装饰在空间氛围设计上营造出一种轻松、惬意、优雅格调的感受。从而获得更为生动丰富的形象体验,其中再配以安静柔和的灯光展示,产生深刻的印象和独特的回忆。


内部空间陈设艺术营造室内空间气氛、提升空间品质、表现主题意境以及空间的文化气息,创造室内空间格调,增加室内空间艺术情怀。以别具一格的几何结构形式延伸到室内空间,雕塑的造型及内部丰富的空间和光影,给游览者视觉享受和独特的空间体验。





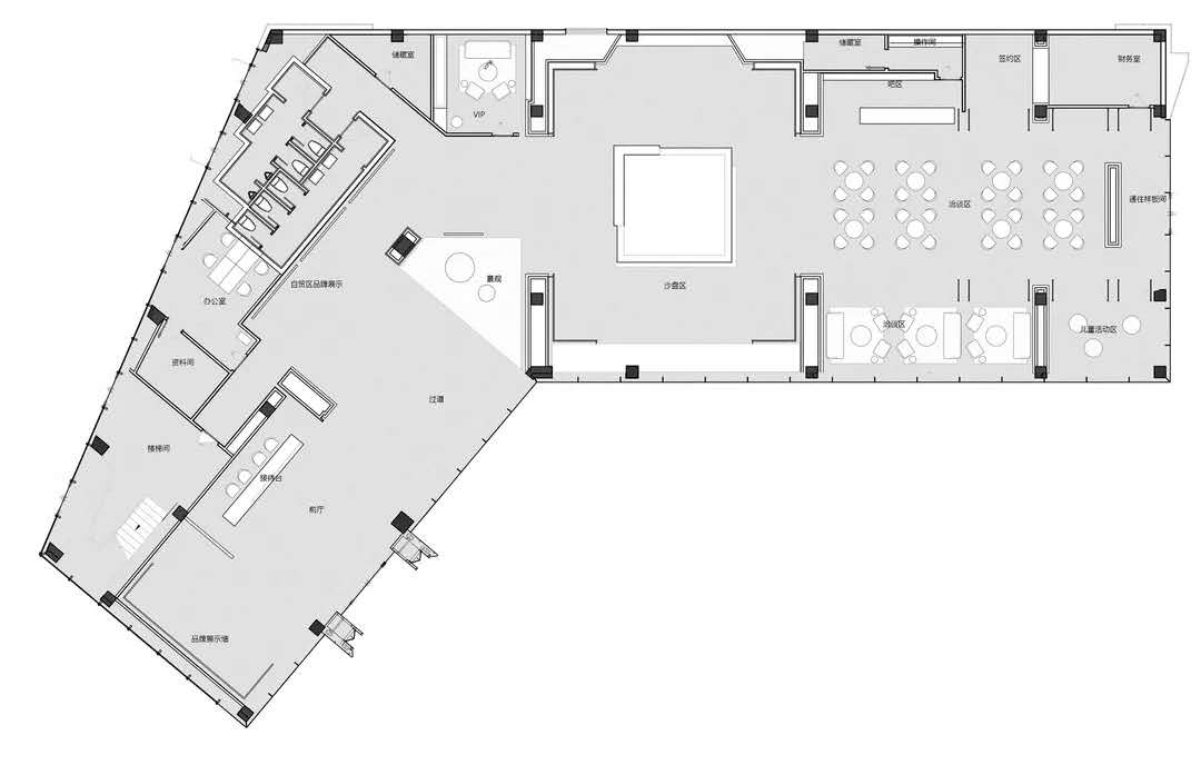
△ 一层平面图
经过不同空间转换,创造生动活泼和趣味的视觉效果,从而产生心灵冲击和情感体验。及对未来生活的美好期望,从情绪上看这是情感的回归。
工程档案
项目名称 | 锦绣樾江府
地理位置 | 南京江北新区
项目业主 | 东原地产 华宇地产 绿都地产
项目功能 | 前期售楼处 后期商业
建筑面积 | 1480平方米
用地面积 | 7000平方米
建筑设计 | 上海成执建筑设计有限公司
副总建筑师 | 曾庆华
设计总监 | 唐林衡
设计团队 | 敖翔 李赓 郑荷珍 李侨
施工图设计 | 江苏浩森建筑设计有限公司
景观设计 | 笛东规划设计(北京)股份有限公司
室内设计 | 上海董世建筑设计咨询有限公司
幕墙设计 | 上海安雷幕墙工程(顾问)有限公司
设计时间 | 2019.8
竣工时间 | 2020.3
项目摄影 | 余未旻
室内摄影 | 夏侯全生