项目介绍 Project Introduction
	
	
云瑶玉陛二期是整个大区中位置最佳之处,背靠自然山体,面临花石沟生态公园,背山面水,具有藏风聚气之势,是上乘的居住宝地。在此我们布置了林溪联排别墅,入则宁静,出则繁华,在生活便捷的基础上,拥有相对独立的舒适性和静谧感。
	
地块周边景观资源丰富,整个区域尽在绿意环绕之中。近800米的公园沿线,蜿蜒曲折,令居民推窗见绿,揽自然之趣。超过800米长的观山视界,规划尽可能多的住户面山、观山。每条至少17m起的视觉通廊,让山体与水体之间相映成趣。
	
⊙二期鸟瞰效果图
⊙景观分析
	
规划方案最大限度尊重原始地形地貌——临河就低,依山就高,形成柔和的带有高低起伏的自然天际线轮廓,使其完全融入周边的环境当中。场地内最大高差20m,每排别墅的露台都能有较为良好的视野。
	
⊙地形剖面
©日野摄影
©日野摄影
	
云瑶玉陛二期以7.8m面宽的林溪联排别墅为主要户型,地块边缘辅以少量洋房,围合式建筑布局,独享景观资源。别墅隔排分台,让更多住户直面公园景观。随着公园绿地的逐步成型,在社区穿行能够感受到鸟语花香、自然清静的“大隐隐于市”。
	
⊙业态分析
©日野摄影
©日野摄影
	
别墅区的低密排布下,景观丰富而多元,步行其中如同置身山林之间,自然归家,喧嚣渐隐。园区中设置了可供孩子玩耍的戏水感应装置及精美的各类雕塑,园林景观之于生活,是不可或缺的自然补给。
	
©日野摄影(左图)
	
	
云瑶玉陛别墅区的设计是一场新与旧的对话,我们期望立足时代而传承经典,提炼传统建筑的特质,以现代建筑的手法精细化体现,突显全新的大宅典范。
	
建筑为管,自然为弦,秉持着演绎人与自然共居的理想,化为黑白琴键意喻的古典音乐韵律,彰显“新古典主义”的设计美学。视觉中心为竖向线条,强调建筑形体的挺拔、向上的姿态,两边以横向线条为主,强调视觉横向的延伸。
	
	
⊙立面概念
⊙滑动查看立面分析
	
设计整体通过对比例、形体、线条逻辑的探寻,以形体的解构与重组,还原德系建筑美学的视觉重心。删繁就简,追求细节,提升舒适度,更直观地给住户以尊贵的体验。
	
从原始体块,然后进行横三竖五的划分,优化体块进退,形成虚实对比,最后增加屋顶基座等细节处理。承袭传统建筑之对称、三段式、虚实光影,去掉非必须的装饰构件,从而减少外立面对室内功能空间的阻碍和遮挡。
	
⊙立面生成
	
别墅立面摄取了现代建筑立面常用的处理手法,提取体量框感和斜面切割,材质选用铝板和玻璃等极具现代风格的建筑材料,使整个立面造型简洁流畅,富有现代建筑的锐利和精致感。
	
⊙效果图
	
通过门头、屋顶、墙身、阳台、台阶、线脚等精细化设计,严控立面节点、提升立面品质。树影与建筑立面线条相互辉映,构成空间的层次美学。
	
⊙滑动查看墙身详图
	
独栋别墅自带小院落,树影斑驳间的入户路线设计,强化了归家的仪式感,外围门户简约而典雅,铺陈了独门独院的仪式与私隐,同时不影响建筑立面的整体效果。
	
	
	
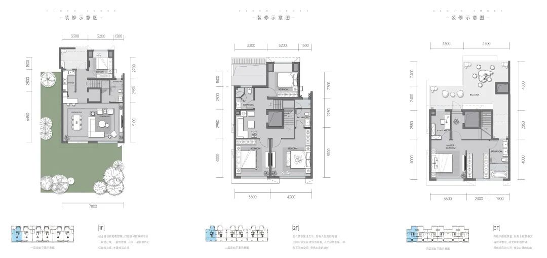
云瑶玉陛的联排,采取宜人的生活尺度,精巧而具有大宅气象,约7.8m的横厅开间,每层超3m的层高,41m²的主卧……在细节处,全屋预留了电梯井,楼梯间开间适宜,踏板舒适,设计极为考虑生活场景的营造。
	
	
别墅户型
	
	| 五房三厅四卫格局,南北通透
 
| 餐厨独立自成一体,餐厨关系极佳
| 拥有大面积露台,绝佳的观光视野
| 主卧配设独立卫浴,合理动线,互不干扰
	
⊙183别墅户型
	
	
别墅作为认可度很高的改善住宅形态,我们期望能赋予生活更多的可能性,在一个有天、有地、有院子的私密生活空间迎来多元化放松有趣的生活场景。
	
露台可观雨听星,庭院可叠石造境,推窗可赏花观景,绿意时刻点缀其间,充裕的阳光总会长时间停留在这些户外的空间里,一种优美的贴地式生活,就像照进小楼里的光一样通透、明朗。
	
	
云瑶玉陛二期内部以联排别墅为主,沿着场地边界布置了两种洋房户型,提高了场地利用率。洋房户型格局开放,均有瞰景大阳台,南北通透,房间设置尽量满足家庭居住需求。
	
	
洋房户型
	
	| 4+1房两厅三卫格局,南北通透
 
| 中西厨皆备,通过生活阳台与工人房连接
| 拥有大面积景观阳台,绝佳的观光视野
| 主卧与老人房配设独立卫浴,合理动线,互不干扰
	
⊙169洋房户型
	
	
| 四房两厅两卫格局,南北通透
| LDK一体化设计,设置生活阳台
| 拥有大面积景观阳台,绝佳的观光视野
| 主卧配设独立卫浴,合理动线,互不干扰
	
⊙117洋房户型
	
	
	
山林、溪边、商圈、别墅,出则繁华,入则宁静,云瑶玉陛二期与自然的逸境相融为一,整体采用现代简约风格,局部以框感造型,高级材质和精湛工艺,让它变得精致又现代,恰到好处的飞扬感,不仅符合当下审美的语境,也充满难以过时的简约。云瑶玉陛二期林溪联排,以蕴养在框景里的生活,等待与向往美好者一同开启这个简约而丰盈的世界。
	
	
	
工程档案
	
项目名称 | 重庆龙湖 • 云瑶玉陛二期
地理位置 | 重庆市渝北区秋成大道
项目业主 | 重庆龙湖
	项目功能  | 住宅
 
总用地面积 | 91311㎡
	总建筑面积  | 184259.21㎡
 
容积率 | 1.3
建筑设计 | 成执设计
设计总监 | 徐鹏
二期设计团队 | 李江 陈首都 堵奇峰 吴良 朱坤龙 吴云飞 刘泽宇 彭思明 徐畅 曾美君 丁盛磊 郑雅文
施工图设计 | 成都基准方中建筑设计有限公司
景观设计 | 承迹景观 道远景观
样板房室内设计 | 锐度设计
竣工时间 | 2022.7
项目摄影 | PrismImage 日野
	








































