项目介绍 Project Introduction
现代城市中办公建筑由于功能的制约,整体常呈现方正的几何体量。而创新中心则要凸显鲜明的时代感,展现科技企业明朗自信的特质。
我司在本案承担了立面设计以及后续项目落地,以富有创意的立面,期望引发人们对内部的探索欲望,用具有流动感的立面平衡方正的几何体量,使之既能与内在秩序和谐统一,同时呼应区域发展与变化,成为以精致细腻取胜的标杆性建筑。
本案位于南京市雨花台区中国软件谷北园,交通便利,地理位置优越,生活配套设施齐全,是中国最大的通讯软件产业研发基地,国家重要的软件产业基地和信息产业中心。周边自然资源丰富,名胜古迹众多,较多优秀的科技产业园扎根此地,形成产业集聚,是一个科技腾飞造梦的乐园。
雨花创新中心的设计要突出建筑的标志性,使其具有时代感,做到简洁中不失表现力,集成对建筑功能、美学和构造的全面结合。
雨花创新中心的功能定位是集总部基地、孵化器、加速器为一体的创新产业基地,设计团队既要考虑创新中心日后发展战略,同时也要考虑城市设计的角度,提供可以休憩的公共空间,创设绿色生态环境,打造具有创意和活力的科技办公园区,吸引顶层人才汇聚。
方案生成
“建筑不是一个孤立的存在,而应该融入城市、融入环境。”
——隈研吾
本案的设计不仅要应对雨花创新中心发展需求,也要顾及与城市的衔接,让园区融入城市生活。场地中有5m的高差,紧邻雨花台功德园,这都是设计需要考虑的问题。
设计通过巧妙分台高差,结合建筑创造了丰富的公共空间,满足功能需求,让建筑适当后退,预留出较多的公共区域,呼应景观文脉,创造生态绿色环境。

⊙总平面图
广场是一个可让人们聚会休息的空间,同时也是人们暂避城市喧嚣的地方。
建筑东西两侧退后形成了广场,引导人流走向,布局与主体建筑物配合,布置绿化与周边场地呼应。既美化了办公环境,也为创新中心的使用者们提供了休闲放松的空间。
设计概念
在南京重点打造科创名城的城市战略下,软件谷顺势而生,在这样的项目背景下,如何体现作为创新中心的风貌,塑造城市标杆景致便成了我们的追求。
设计为了创造独特新颖的外观,提出了别具一格的创意思路:立面利用线条勾勒类似翅膀或者云朵的肌理变化,形象上具有飞翔和上升的意向。
⊙从蝴蝶、云朵中提取元素,转化为金属环的表现形式
⊙每层出现的环与玻璃盒子共同组成了大楼立面
从自然图案中汲取的意象转化为了平面上具有转折变化的金属环,与玻璃盒子结合共同组成了大楼立面。
形式追随功能,设计模拟场景。建筑内部平面确定的分隔较少,大部分空间留待使用者布置。立面设计以玻璃盒子为主体,视野范围内没有分格立柱,既是追求从室内视角达到最大的通透性,同时无碍于未来内部布置。
⊙一层平面图
日暮时分,晚霞的余晖映照在玻璃盒子上,灯光沿着铝板散射延伸,光影变幻与瑰丽的色彩交织。
方案比选
设计采用了相对简洁的手法来做立面整体的统筹与演绎,由香槟金色铝板和玻璃幕墙组成的建筑立面通透感强,简约大气,铝板转折变化丰富了人的视觉体验,经过缜密推敲表现出的设计感使简洁与精致并不相悖。
设计团队进行了一系列的方案比选,从铝板布置的形状,疏密,长度等各方面仔细推敲,探究不同变化带来的影响,最终确定了方案。
⊙方案比选
铝材的排布与变化经过了三个方向的比选,二维平面与三维曲面视觉效果相差不多,但是施工难度较低,均匀分布保证立面的简洁性,观感更加舒服,而选择凸出800mm则是为了平衡形式和灯光的完美呈现。
站在楼下或是俯瞰层层叠叠的铝板,转折变化带来了不同的立面观感,从而使整栋大楼有了虚实之分的对比,整体对称的设计减弱了大面宽带来的视觉拥堵感。
⊙立面图
玻璃幕墙
建筑立面以铝板和玻璃为主要材质,在不同位置玻璃的选择上亦有考虑根据内部功能和外部形态而存在区分。建筑的每一处变化都伴随着功能与形式的改变,完美体现了现代建筑的内在逻辑。
科研办公区域以蓝灰色玻璃降低透光率,而裙房则采用晶莹剔透的超白玻璃,玻璃上不同方向或明或隐的线条则给人以与形体相反的延伸感。
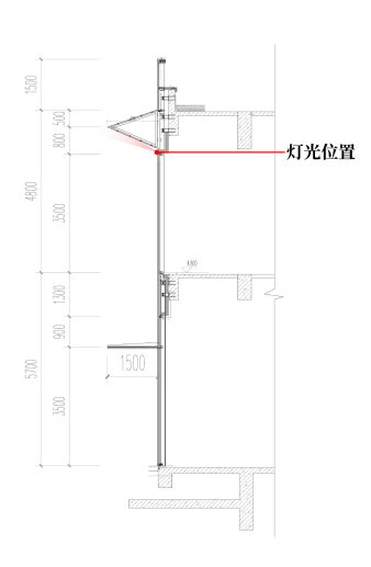
灯光设置
灯光与铝板的组合让色彩和流动性叠加,具有很强的科技感,呼应建筑本身的科技产业园属性。
每层在铝板下设置灯光凹槽,利用层间铝板底部的宽窄变化,灯光区域全亮时会有宽窄变化。勾勒强调建筑形体。
|塔楼节点|
入口设计
入口大堂对办公建筑形象塑造有重要作用,设计希望展现简洁干净的效果,同时也满足实际功能需求。延伸出的雨棚和灯光设置共同起到了强调入口、引导人流的作用。
|雨棚节点|
|雨棚节点|
中庭设计
流线型的巨大天窗既是为了满足室内公共区域采光,同时它处于建筑整体的“心脏”位置,有着祝愿科技产业园一路明灯向前的寓意。
天窗在矩形截面钢结构的基础上,外包铝板处理,增加天窗精致感,提高落地效果。而铝板的梯形截面则降低结构的视觉重量。
⊙天窗效果图
明亮的天窗与干净纯粹的室内设计的组合极具视觉冲击力,传达着空间的动感,释放着科技企业自信、奔放和明朗的性格特质。
办公建筑是城市建筑中不可忽视的组合元素,长期以来形成了大致固定的空间形态和表现形式,而对于创新中心这样新颖的定位来说,如何在已有的基础上去体现科技感,需要打磨新颖创意和追求极致细节。
工程档案
项目名称 | 南京金地威新 ▪ 雨花创新中心
地理位置 | 南京市雨花台区安德门大街23号
项目业主 | 南京金地商置
项目功能 | 创新中心
建筑面积 | 95505.18 ㎡
建筑设计 | 成执设计
总建筑师 | 李杰
设计总监 | 姜超
设计团队 | 韩书海 张知敏 蒋亚新 张雅楠 张建成 袁晨露
景观设计 | 上海采锦建筑设计咨询有限公司
室内设计 | 上海高美室内设计有限公司
施工图设计 | 南京长江都市建筑设计有限公司
设计时间 | 2018.09 - 2019.11
竣工时间 | 2021.06
图文编排 | 成执品牌
项目摄影 | 行知影像



































