项目介绍 Project Introduction
地产寒冬,产品力就是生命力
众所周知,近年来地产市场遭受寒流,销售低迷,在如此大环境下,什么样的产品才能获得市场的高度认可?
宜兴栖氿云璟项目是我们的一个积极探索,该项目近期取得了傲人的开盘业绩,刷新当地楼市三年来的热销记录,并入选江苏省“改善型住宅示范案例”。
网络图源
代建方兼顾了甲、乙方的双重角色,其“产品经理”团队与设计师一起并肩作战(相爱相杀),直面市场、客户、技术、成本和效果的各项需求,并在其中起到关键的协调和决策作用。这与以往的非代建项目由甲方单向输出,设计师照单全收的方式有很大区别,设计师在这种三方合作里有了更多专业协商的可能,是一次难得的设计体验。
项目出圈,是先天优越还是后天修炼?
在设计初期,当我们刚拿到项目资料,发现此区域为主城边缘极刚需板块,城市界面破旧,配套不完善,周边竞品陷入滞销。
产品经理和设计师们从一开始就陷入了绞尽脑汁苦苦挣扎的境地。
既然地块城市界面受限,那就“求诸于己”,将社区内外边界及产品本身作为设计发力的基本点。基于城市更新的契机和现行市场需求,产品方向主推“第四代”空中墅住宅,打造高品质的小面积段改善型项目,对周边项目形成迭代式的竞争优势。
在项目开始之初,设计条件面临着非常大的不确定性,这个时候三方合作的模式起到了巨大的协调推进作用。设计师前期通过多方案对比,借鉴其它城市政策,反馈四代宅日照、间距、空中花园尺度和面积计算等关键的诉求,产品经理居中沟通协调,通过组织全国多地已建四代宅项目的交流考察、重点条款专家研讨等方式与甲方一起合力推动,成为宜兴四代宅第一个吃“螃蟹”的项目。
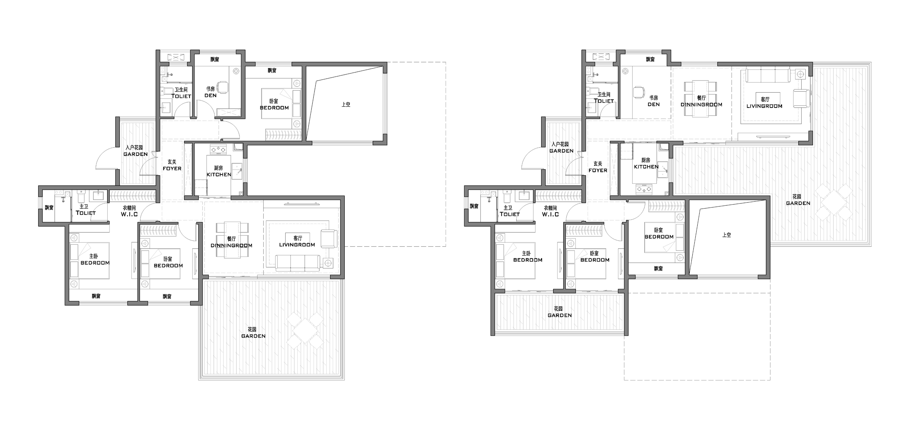
在地产项目中,向来是总图条件决定产品形式,有多大灶配多大锅,户型组合、面宽、进深等尺寸是在日照、退界等条件限定下严谨的数学计算结果。在这个“刚需”项目里,规划条件严格限定楼栋面宽不超45米。极致高低配去化风险大;做全T2得房率低,楼栋数量多,间距小;做全T4单户面宽受限;经过多轮推导,最终确定了全T3大面宽楼型的总图布局。
总图推导示意
鸟瞰效果图
小户型有大梦想
设计师需要的不止是懂产品,更需要懂生活,能够站在居住者的角度设身处地思考什么样的产品才是大家真的想要的。而四代宅日照、对视等通病问题如何解决,是设计的重点,尤其对于T3连廊户型而言,需要解决诸多矛盾性的诉求。
一是如何做到“小面积大空间”,实现越级提升感;
二是如何解决大出挑空中花园带来的日照自遮挡问题;
三是如何保障中间户的视线隐私性;
乐高空间,立体院落
在113/115的小户型中,设计师给到单户南向五面宽,客厅区域错动挑空,奇偶层露台错动挑空。
113/115户型
113/115户型户型图
113/115户型模型示意
通过设置定向格栅及磨砂玻璃规避相邻花园间的视线干扰
在满足各项诉求的同时,也硬生生将营销原来想要的105面积段做大了近10平米。很幸运,产品经理没有囿于传统总价思维,而是认为场景和空间关系更重要,后面的销售证明,客户对100多的房子能够出现挑空(豪宅都未必有)的产品有极大认可。
143户型模式一
143户型模式一(客厅挑空)模型示意
143户型模式一户型图
143户型模式二
143户型模式二模型示意
143户型模式二户型图
143户型模式三
143户型模式三模型示意
143户型模式三户型图
在满足奇偶层均好性的前提下,综合客户倾向及成本考虑,143户型设计最后选择了模式三。
示范区结合宜兴本地特色,以江南的清雅平淡+都市精致主义为主基调。
售楼处过程稿
摒弃金碧辉煌的符号堆砌,回归地域性、回归生活性,赋予项目清新自然的都市风貌。
示范区后场的规划巧妙地将架空层景观融入整体设计之中,旨在营造一种层次丰富且富有诗意的江南园林意境。
通过细腻的空间布局和精致的景观小品,使访客仿佛置身于一幅流动的山水画卷之中,既能感受到江南水乡那份独有的温婉细腻,又能体会到现代设计带来的简约与大气。
在打造大区景观及活动区域时,设计意图构建一个多维立体的花园体系,这一体系不仅串联了地面层的社区花园,并与住宅楼栋的空中花园相互观望与呼应。
创造了一个既富有文化底蕴又兼具现代气息的森系度假社区,让每一位居住者都能在这里找到属于自己的心灵栖息地。
具有都市精致感的四代宅社区
四代宅的住宅立面常见两个极端,一是炫技派,以弧形玻璃和弧形线条为立面主要元素,对成本和施工要求较高;一是低技派,立面少设计去装饰,以花园绿植为立面主要元素,但因绿植存在着相当大的季节差异性和维护的不确定性,最后往往呈现与方案效果巨大的落差。
立面生成分析
住宅效果图
以设计师的立场来看,四代宅产品价值的全面拉通与技术平衡是一项至关重要的任务,它要求我们不仅要关注住宅的功能性与舒适度,还要兼顾美学与可持续性。我们注重通过简约而富有内涵的设计语言来表达建筑的内在价值,使其在时间的长河中保持独特的魅力与生命力。
本案住宅立面采用都市精致路线,根据项目成本控制的实际情况,摒弃复杂的形式操作,以层叠的空中花园为主要形体元素,在绿植的装饰之外,自然生成富有体量感、层次感的立面形象。立面采用白金配色,使建筑调性更显清雅精致。
清雅精致
都市精致
工程档案
项目名称
| 栖氿云璟
地理位置
| 宜兴城北
项目业主
| 宜兴市城市发展投资有限公司
代建单位
| 上海东原睿建建设管理有限公司
用地面积
| 41266㎡
建筑面积
| 113784㎡
建筑设计
| 成执设计
总建筑师
| 李杰
设计团队
| 唐林衡、李东霖、付争辉、杨开放、
罗忠亮、杨柳
施工图设计
| 江苏城归设计有限公司
景观设计
| 魏玛设计成都公司
室内设计
| 上海艾迪格建筑设计咨询有限公司
设计时间
| 2023.5-2024.5
项目摄影
| 上海木隼文化传播有限公司(建筑)
IAM岸木摄影(景观)



















































