项目介绍 Project Introduction
甲方给到一块极致条件的地块怎么办,
强排测算量不够?产品不匹配?需要研发新户型?
先别急着去撞墙,我们给出了解决方案。
想要全套解题攻略?
别急!
首先让我们看看传奇的金牛49亩地块的土拍背景。
成都近两年,土地市场热的热、冷的冷,
无数企业都在找寻那个可能存在的捡漏的机会,
但是说着容易、做着何其艰难。
一片热闹的平静,就是茶店子的金牛 49 亩,
在那次耀眼的土拍中,默默无闻的那个地块,
在这么好的板块、这么优质的天府艺术公园、这么便利的地铁旁边,光芒被遮盖了的那个璞玉。
伴随西宸天街落定的高端居住区,
改善了城市消费结构和场景。
自2021年起,
天府艺术公园城市级公园IP和金牛新城崛起、
三大TOD鼎立,
构建城西超级引擎,为城市生长加速兑现。
用地条件极致,没有解题能力,只有干瞪眼!
Q:你问我条件极致到什么程度?
A:来吧,展示!
地铁轨道从斜对角切分两个地块为2个三角地,
该地块地下室无法联通,只有做成 2 个独立片区,
可以想象一下三角地的车位布置有多么痛苦,
单车位指标一旦控制不好,可能干到地下3层,
带来的护壁成本飙升、隔壁老小区的深基坑保护、地铁埋深保护等问题一一显现。
地块东北侧虚线是金牛国宾馆的 500 米限高控制区,
在此区域内,建筑限高仅仅只有 15 米。
现有建筑位于西侧、北侧,特别是西侧现有建筑,
遮挡日照严重。
而这个地块的容积率是多少呢?
是2.5,不可建设区9600平,实际容积率3.55 。
搞不好,这个地块可能会损容。
Q:这么极致的条件,谁有能力拿到这块地?
A:地块地处金牛区;
西侧 100 米范围内,有茶店子地铁站出入口;
地块边就是优质的天府艺术公园。
这么优质的地块,哪个开发商不想收入囊中?
却被龙湖以如下方案最终底价摘牌,
因为本方案是极致条件下诞生的
优质方案!
让我们看看方案结果
总体平面图
2023年11月15日该地块成交,
至本报规图纸2024年2月27日盖章,
花费104天,也就是3个月12天,
你以为报规水平低?效率差?
不!
这恰恰说明了3 个月 12 天这么短时间能搞完这个项目的报规,花费了多么大的精力和心血。
1、该项目地下室被轨道划分为2个部分,没有出现3层地下室,只有2层,合计2.7万平米,车位784个,单车位指标34.4平/个,控制十分优秀。
2、按照技术管理规定红皮书100平1.2个住宅车位计算,本项目住宅81276平,应该有975个住宅车位,减少到781个,相当于减少了194个车位,即为20%,完全利用了地铁站街坊项目的车位减少优势。
3、从总平上分析,大面积采用T3 体块,而非T4+T2甚至T6+T2,并且中庭楼栋最大化利用景观,中庭有超长景观视线通廊,可以直接看天府艺术公园和金牛国宾馆。
4、极致的建筑密度。话不多说,卡着最高密度,一点都不浪费。
属于是在艰难的地块规划条件下能做到的最好了。
光看结果不过瘾?那接下来就让我们看看设计师是如何一步一步破解这一难题的。
破题思路一:化劣为优
利用地铁上盖保护区范围,
要保护轨道安全,结构下不去?
那地上就规划为大门、展示区、全民健身活动场所,
就势打造小区中央主题景观轴,
变不利为有利,
将空间交还业主,
与天府艺术公园共同组成公园城市视觉通廊、公园绿带走廊。
破题思路二:极致推演
由于地块位置处于金牛区成熟片区,
所以地块东、西、北侧均有现状住宅。
在本次的方案设计中采用了
日照反推(包络体解析)
及日照仿真模拟等非常规手段,
进行了多达60稿方案比选,
最终形成了目前所呈现的最优解。
且保证了只开挖两层地下室。
话说每一位优秀的建筑师手中都有一张
日照必过符!
大部分楼栋都采用局部降层、按户降层的方式,
这种排布方式不仅解决了
难以解决的日照问题,
建筑错落有致,
与周边建筑形成了
独特而丰富顺畅的城市天际线。
天际线分析
破题思路三:完美利用
最大化利用景观轴
和对基地外日照产生不良影响的位置
布置总层数四层的大平层住宅。
将售楼处机智地布置在景观轴线的中心位置,
而后将其改造成社区内的精致会所,
为业主们提供尊贵的休闲场所。


总体布局示意
辗转细品,
空间设计中的世界语言有序交织,
毫米级工艺细腻的释放温度与色彩,
让世界的四季之美高定在每一处空间。


售楼处实景照片
坐落艺术极核,自然与城市地标灵感对望,
引天府艺术公园水景入园,
开辟超240米景观中轴,
把城市最好的风景勾勒进眼前的水上藏馆。
景观实景照片

景观实景照片
黄金海岸般的曲线轮廓如晶钻映于水岸,
与大师高定的雕塑彼此衔接、扩散,浓烈的艺术
感怀舒缓于近2.7万㎡园林景观中。
景观实景照片
破题思路四:业态匹配
为了不损容!
为了能做出来市场的主流产品!
要专门研发新户型,不仅无法套标准户型库,
为了让位给T2,
不排除还可能出现T6 的产品!
但是如此优质的城市区位,
T6的户型产品力不足,
会降低社区预期的品质!
只用T2的产品排布,
又无法满足极致用地条件下的容积率。
所以选用了进深较小的创新型T3的产品
及多种产品搭配的方式,
便轻而易举地解决了
地块小,容积率高的双重难题。
如此操作之下,
我们终于得到了本地块总图排布的
优质方案!
鸟瞰效果图
那么在如此总图之中会产生怎样的产品呢,
会有值得考究之处吗?
让我们来揭秘一下吧!
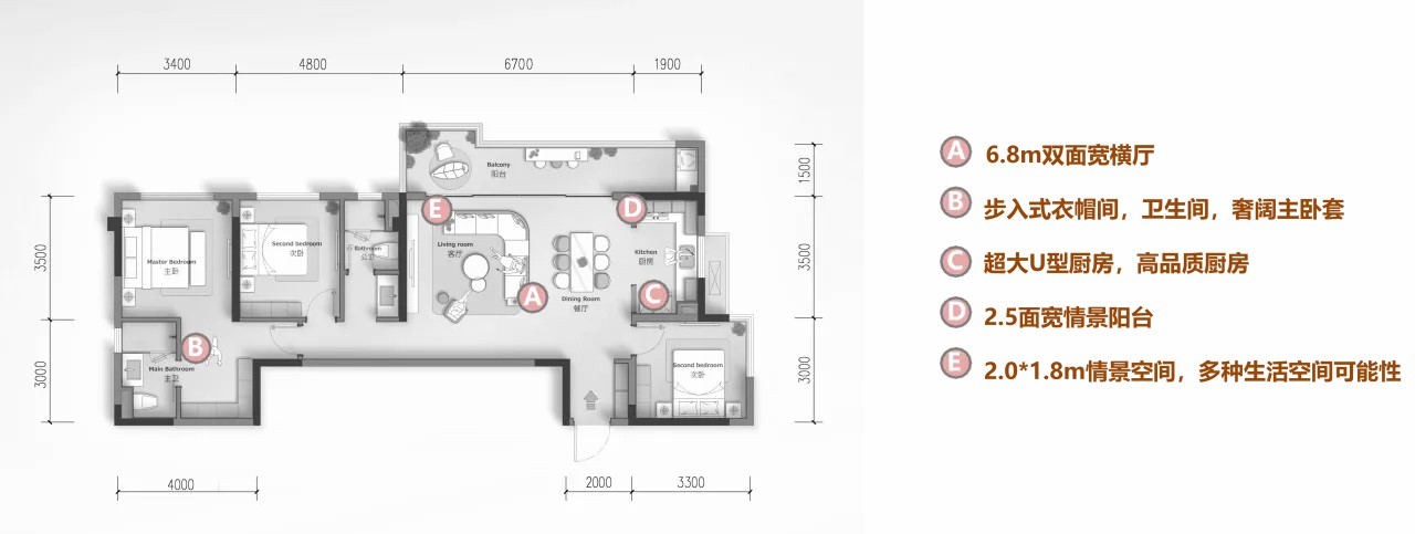
185㎡户型

185㎡户型室内效果图

185㎡户型室内效果图
143㎡户型
138㎡户型-1
138㎡户型-2


138㎡户型室内效果图
118㎡户型
不难看出,
每个户型产品都动静分区完善、极致面宽、
由于采用了T3产品
所以板率没有给到传统龙湖的T2电梯光厅
而是基本给到了户内,
该有的飘窗赠送全部都有。
中庭T3 北侧鼻子户138 四房双、
两侧端户也是 138 四房双,
都是同样的 138,
超大面宽观景有了,
甚至把能在规划限度内
最大的赠送能想到的全做满了。
本案延续龙湖以水为载体,
在城西艺术都会极核,
为成都打造融入世界灵感的水上居所!
以城市标杆为打造初衷,
糅合海鸥曲线、屋顶钻石光感转角玻璃,
植入建筑立面,
打造现代奢感立面。
建筑立面整体为三段式划分,
并通过强调横向线条+通高L型曲线
形成舒展大气的建筑外立面形态。


住宅实景照片

入户门头实景照片

入户门头实景照片
定制专属黄金海岸线弧面入户门头更加舒展
造型美观轻盈,搭配星光顶,尊崇感十足
深色仿铜不锈钢与灰色花岗石相撞
色彩体系与住宅主体相互呼应
单体效果图
单体效果图
质感材料的优雅搭配住宅立面多结合采用麻砂石、水包水、石材、不锈钢、玻璃等建筑材料;色彩运用方面采用海滩色系,贝壳白铺垫基调,浅灰色和米白相互映衬,礁石灰缀其中画龙点睛,沙滩金璀璨挥洒在部分楼栋及入户大堂形成独到风景线,深海蓝玻璃熠熠闪耀、整体色彩效果沉稳大气,有收有放。

材质分析图
工程档案
项目名称
| 成都龙湖西宸 · 御湖境
地理位置
| 四川成都蜀跃路
项目业主
| 成都龙湖地产
用地面积
| 32593.54㎡
建筑面积
| 111859.55㎡
建筑设计
| 成执设计
总建筑师
| 李杰
设计团队
| 住宅大区:徐鹏,李东霖、李江,
陈怡、王毅、蔡昭辉、常晓敏、
陈罕怡、周奕良、王东东
示范区:薛羽、韩雪峰、李乔 ,王毅
BIM: 张永鹏、易成璇、张毓慧、
王洋洋、施佳晨、姜海
施工图设计
| 洲宇设计集团股份有限公司
景观设计
| 凯盛上景(北京)景观规划设计有限公司
室内设计
| 维几室内设计(上海)有限公司
设计时间
| 2023.11-2024.02
竣工时间
| 在建
注:本文部分内容引用于公众号“一语中地”的文章《于无声处,听惊雷!带你分析一宗精彩的土地报规方案》
如有侵权请联系删除



















